inventarchitects


CONCEPT


PROJECT DESCRIPTION

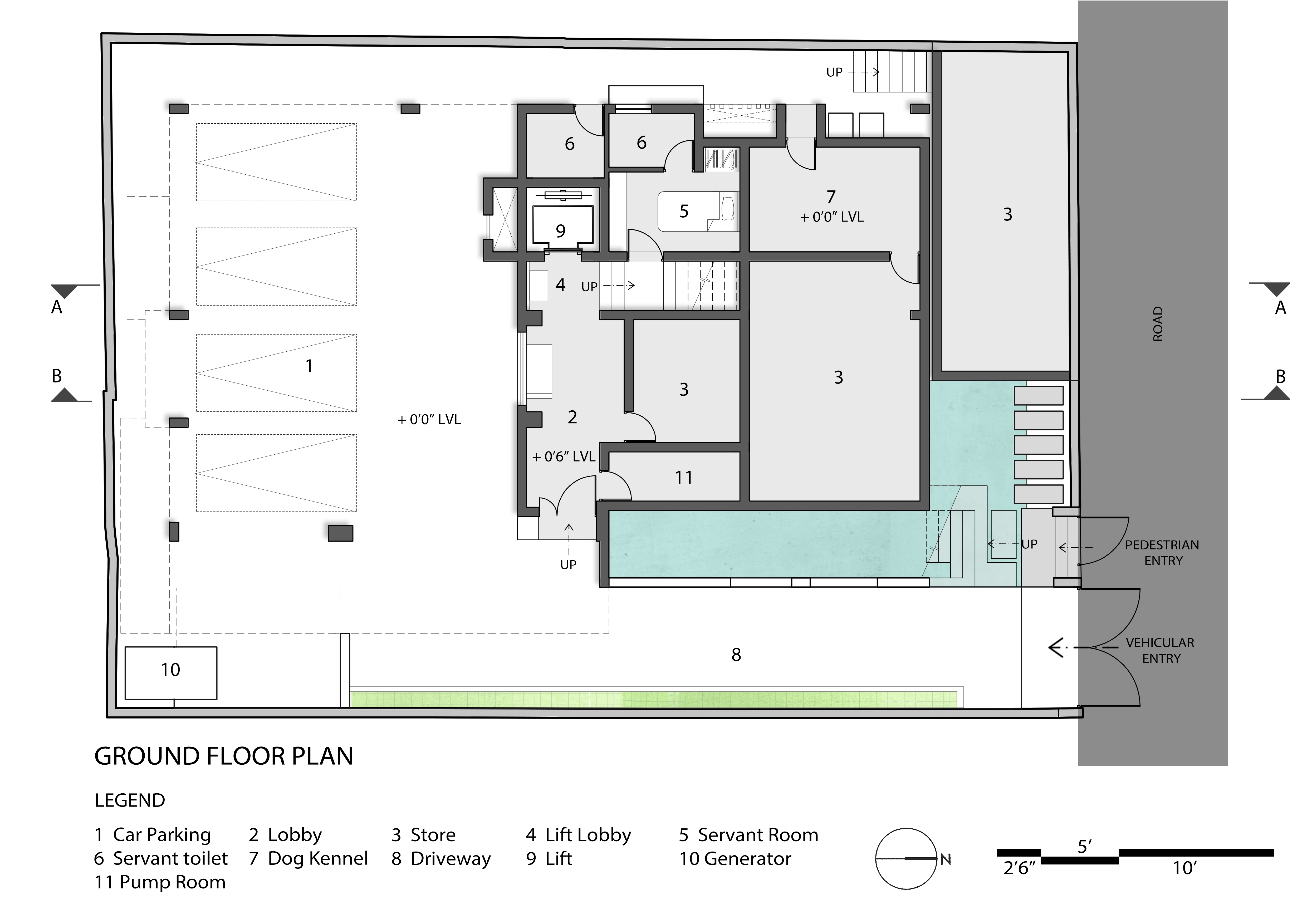
The north facing plot, situated amidst the urban fabric of Kilpauk,Chennai .The house of cross exposed to rich vegetation around the site, fabricate the exterior which ensures privacy , making the most of its context while respecting its green surroundings. The independent house hosts a six mezzanine level built volume in a staggered vertical axis .The building is designed in an site area of 4414 Sq.ft comprising an built up area of 9500 Sq.ft. ....

The entry to the site is via north,with a driveway leading to the parking . The main entry on the first mezzanine level greets the guests with a glass staircase over a koi pond.

Based on the client’s preference, the spaces are strategically staggered vertically with the ground floor hosting the formal spaces, and towards the informal spaces as we move above. The separation of zones is achieved in a seamless manner with the help of two courts separating the house into two different axis. The zones in-between are played with interactive spots.

Being spine of the house, the triple height courtyard facilitates the vertical circulation, also providing endless opportunities for the users to explore and be connected visually at various levels. The floating wooden steps gradually connecting the six staggered levels physically, Where the triple height chandelier connects visually between the various levels. Illusion of an inverted stairs is given by the triple height courtyard along with chandelier, that it creates an visual connectivity between the six staggered mezzanine levels.

The water court on the south zone, anchors a water wall with customized backlit CNC marble, enhancing the dynamic spatial quality of the house.

An intimate connection overlooking the dry courtyard from the gathering spaces constitutes the inward planning of the house. Balancing it with the sit-out spaces and deck areas that connects the outdoor from the gathering spaces situated on the central axis naturally embarking the sacred element, the cross.

The kitchen on the south east corner has a large opening onto the east axis, bringing in ample amount of sunlight making the space vibrant in nature

Moving up by a level, we reach the core family spaces ,that includes the bedrooms and private gathering spaces such as home theatre, lounge and an outdoor swimming pool

On the top most floor is the suite room with a sky-lit shower area, overlooking the marble water wall central courtyard and terrace.

By subtracting the northern mass, the light is efficiently captured from the north side, allowing spaces for social gatherings.

The material selection consciously veers towards familiar, comfortable choices to prevent alienating the home from the society both architecturally and psychologically Elements like wood, which has always been a conventional building material popular in tropical design . The architectural lights were designed to be a part of the overall design element.

To accentuate the volume of common spaces, aesthetic hanging wired lights were designed that has significant impact. Abstract patterns of cross accentuates various spaces around the home integrating them as a whole.

The source of the kitchen tiles were acquired from Khajaria, all the plywood and laminated are choosen from Green, Light fixtures which compliments the house’s aesthetics are from Futura, Abba, Phillips.

Hand picked furniture was used in the interior to complete the look. Though different in origin,style and details reflecting the traits of client’s personality enlighten and emblish the spaces to its maximum grandeur,and it complemented and blended with the traditional style of Kerala’s architecture.

PROJECT IMAGES


HOME

PROJECTS

OFFICE

ACCOLADES

BLOG
VIDEO
CONTACT